

为您提供 瓦房店凯威精工轴承制造有限公司(瓦房店重型轧机轴承制造有限公司)的轴承产品
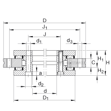
d 150 mm
D 240 mm
H 40 mm
1) 定位螺栓
a 6,2 mm 内圈上的固定孔
C 12 mm
D1 max 214 mm
d1 7 mm 内圈上的固定孔
d2 11 mm 内圈上的固定孔
d3 7 mm 外圈上的固定孔
G M8 退卸螺丝
H1 26 mm
H2 14 mm
J 165 mm 内圈上的固定孔
J1 225 mm 外圈上的固定孔
nG 3 退卸螺丝的数量
nHS 2 固定螺丝的数量
nSa 33 外圈上固定孔的数量警示!
用于相邻结构装配孔:标示轴承装配孔的节圆。
nSi 34 内圈上固定孔的数量警示!
用于相邻结构装配孔:标示轴承装配孔的节圆。
t 36 X 10° 节圆的数量X螺旋角 包括紧定螺栓和螺纹退卸孔
m 6,2 kg 质量
MA 14 Nm 螺栓紧固力矩
螺栓的紧固力矩按 DIN 912 标准, 等级 10.9。
Ca 85000 N 基本额定动载荷,轴向
C0a 510000 N 基本额定静载荷,轴向
Cr 77000 N 基本额定动载荷,径向
C0r 179000 N 基本额定静载荷,径向
nG 210 1/min 极限速度
对于高运行周期或持续工作的工况,请与我们联系。
MRL 13 Nm 轴承摩擦力矩
caL 2300 N/µm 轴向刚度
滚动体布置,轴承套圈和螺丝连接的刚度值汇总
crL 2600 N/µm 径向刚度
滚动体布置,轴承套圈和螺丝连接的刚度值汇总
ckL 11000 Nm/mrad 倾斜刚度
滚动体布置,轴承套圈和螺丝连接的刚度值汇总
|
d
|
150 mm
|
|||
|
D
|
240 mm
|
|||
|
H
|
40 mm
|
|||
|
|
||||
|
1)
|
|
|
||
|
a
|
6,2 mm
|
|
||
|
C
|
12 mm
|
|
||
|
D1 max
|
214 mm
|
|
||
|
d1
|
7 mm
|
| ||