
1 概述
近年来,我国国民经济迅速发展,随着人口密集度和交通压力的增加,各种基础设施建设工程不断展开,轨道交通、市政管网、水利等将建设大量隧道,而有“地下航母”之称的盾构机在其中发挥着至关重要的作用。盾构机齿轮减速器是盾构机与驱动电动机或液压马达之间的减速传动装置。盾构机驱动核心齿轮减速器主要有刀盘主驱动减速器、螺旋输送减速器和管片拼装减速器。
盾构机齿轮减速器是典型的高功率密度中小型行星齿轮装置。其工况特点是:连续工作,变速、变载、工作条件恶劣、伴有一定冲击载荷,要求可靠度高。本章将介绍盾构机齿轮减速器常用传动形式的结构特点,内容仅供设计时参考。
2 刀盘主驱动减速器
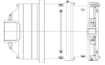
刀盘主驱动减速器主要用于传递扭矩、控制转速,以驱动盾构机刀盘旋转掘进。通常由多台同规格行星减速器同步驱动,其传动比多在 i=15~200 范围内,采用两级或三级行星结构。减速器按输出形式分为行星架花键输出和齿轮轴输出两种
该系列减速器通常由水冷装置、 NGW 行星齿轮装置组成。部分主驱动减速器在输入端设计有制动器。
以上主驱动减速器设计的主要特点为:
由于主驱动减速器的安装使用空间有限、散热能力差,长期使用过程中会产生大量的热量,若损耗能量不能及时散发,将会导致减速器内部油温急剧升高,进而影响减速器的润滑性能;严重情况下,齿轮和轴承将承受较高的热载荷和较大的热膨胀,从而使得齿侧间隙和轴承游隙减小,造成润滑油膜破裂,引发齿面和轴承表面热胶合失效,最终导致减速器故障。设计一种高可靠性连续循环水冷装置来解决热平衡及温升控制就至关重要。该系列减速器在输入高速端采用内置冷却水箱设计,通过循环流动的冷却水带走一部分减速器内部产生的热量,从而实现散热功能。
(a) 冷却水箱承压要求 0.5~1MPa,不允许有任何渗漏情况发生。推荐采用焊接式或整体铸造箱体,注意焊缝及铸造缺陷控制;箱体需进行密封性保压试验,压力控制在 0.5~1MPa,保压 60~120min。
(b) 减速器热功率计算参照GB/T33923 标准;由于减速器冷却水与电机水路串联,整个系统冷却计算涉及的流量、温度应充分匹配。冷却箱体内部热交换面积将在一定程度上决定其具体构造。
(c) 冷却水腔内部表面为满足较高的防腐、防锈要求,推荐采用涂漆镀层等技术;且具有一定的加工友好性,对后续精加工无较大影响。

(d) 冷却水箱密封潜在失效点尽可能布置在齿轮箱外端,避免渗漏后冷却水直接与润滑油接触;同时需考虑设计有冷却水渗漏监测接口,便于定时巡检。
(2) 齿轮参数选取
为了提高减速器的功率密度, 行星轮系常采用 3~4 分流, 低速级小速比、 大模数设计。太阳轮、 行星轮采用低碳合金钢, 渗碳淬火, 齿面硬度为 58~62HRC, 芯部硬度 30~42HRC,齿面磨削达 GB/T10095 的 5 级或 6 级;同时为提高其齿根弯曲强度、齿根采用强化喷丸处理;内齿圈采用调质钢,齿面氮化处理,硬度为≥600HV。对行星轮和太阳轮进行修形和修向,可一定程度的降低齿面载荷分布系数,避免偏载造成的应力集中;同时降低齿轮啮合冲击而产生的噪声。
(3) 轴承配置
为满足变载荷工况使用,高速行星级其行星轮推荐配置带保持架的滚子轴承,尽可能的避免高速离心加速度的不良影响;低速行星级载荷大、转速低,行星轮轴承布置空间严重受限,通常配置高承载无外圈满装滚子轴承, 滚动体及内圈推荐黑化或金刚石等涂层方式处理,可解决满装滚子轴承在空载条件下滚动体打滑及在低速情况下滚动体润滑油膜形成困难等难题,进一步降低滚动体磨损风险,延长轴承使用寿命;作为外滚道的行星轮内孔有着较高的精度要求,内孔滚道表面硬度≥58HRC,粗糙度 Ra 推荐 0.2~0.4μ m,同时,注意磨削裂纹控制。
(4) 浮动机构及轴向间隙
高速行星级、中间行星级通常采用太阳轮和行星架同时浮动,低速行星级采用太阳轮浮动。采用了均载的浮动机构,其浮动件必须有足够的轴向间隙,常规刀盘主驱动减速器内部总轴向间隙推荐 1~2mm。
(5) 减速器的润滑
主驱动减速器通常卧式安装, 采用浸油润滑, 一般选用 220~320 号全合成工业齿轮油;环境温度 0℃~20℃时,加油量推荐至最高和最低油位线的 1/2 处,不同温度,加油量作相应调整。
3 螺旋输送减速器
螺旋输送减速器承担着向外运输土石料,保证前端刀盘顺利向前挖掘的任务,同样属于盾构机核心驱动装置。其传动比多在 i=3~100 范围内,涉及单级平行齿轮减速器、一级行星齿轮减速器、二级行星齿轮减速器和三级行星齿轮减速器四种结构。减速器按结构形式主要分为 NGW 行星级和多齿轮并联平行级两大类。
以上螺旋减速器设计的主要特点为:
(1) 齿轮参数选取
NGW 行星级螺旋输送减速器行星轮系常采用 3~4 分流传动;多齿轮并联平行级螺旋输送减速器小齿轮采用 2~3 汇流传动。齿轮采用低碳合金钢,渗碳淬火,齿面硬度为 58~62HRC,芯部硬度 30~42HRC,齿面磨削达 GB/T10095 的 5 级或 6 级;为提高其齿根弯曲强度、齿根采用强化喷丸处理。
(2) 轴承配置
螺旋输送减速器安装角度与水平线夹角通常为 20~25°,输出端需承受外部数吨径向力与轴向力,输出端支撑轴承选型需校核倾斜安装时附加轴向力与径向力影响;同时关注倾斜安装时输入端轴承润滑方式与选型。
(3) 极限承压
为防止盾构机泥水倒灌损坏减速器等关键设备, 减速器输出端密封需极限承压1 MPa。根据泥水介质、压力等要求进行设计选材、定制尺寸构造与组合形式。
(4) 减速器的润滑
螺旋输送减速器通常卧式倾斜 20~25°安装,采用浸油润滑,一般选用 220~320 号全合成工业齿轮油;加油量参考箱体上透明油标,最低油位需保证输入密封件与轴承的充分润滑。
4 管片拼装减速器
通常由 1~2 台管片拼装减速器驱动管片拼装机回转支承,最终完成拼装衬砌管片的任务;同时还具有锁紧功能。其传动比多在 i=15~50 范围内,主要由摩擦片制动器和两级 NGW 行星齿轮结构组成。
管片拼装减速器设计的主要特点为:
(1) 制动器设计
输入端内置摩擦片制动器,通常设计为常闭式,即在未通入高压油时,制动器处于压紧抱死状态,可用于静态制动;而在减速器正常运转过程中,则需持续通入高压油以打开制动器。制动器摩擦片传扭设计安全系数推荐≥1.2,摩擦片脱开设计安全系数推荐≥1.5,其中摩擦片脱开总间隙推荐≥0.3x2xA(A‐摩擦片数量);具体设计参考 JB/T 9713、 CB/T 3454 等标准。
(2) 偏心距调整
为了便于准确地调整减速器输出齿轮与回转支承齿圈之间的齿隙, 输出法兰与输出齿轮采用偏心设计,偏心距通常为 1.5~2.5mm。
(3) 轴承配置
减速器所有部件通常采用滚动轴承支撑。行星轮采用滚针或滚柱轴承,悬臂输出齿轮多数采用调心滚子或圆锥滚子轴承支撑。
(4) 减速器的润滑
减速器卧式安装,采用浸油润滑,一般选用 150~220 号全合成工业齿轮油;通常加油至减速器中线位置;同时箱体设计时考虑足够数量接口以便减速器安装角度变化时调整安装油标。